Here is the vision for the development of a Doctor's Surgery, Pharmacy and Nursery at Tamar View Community Complex.
|
 View along Miers Close |
 View from Miers Close |
 View from West |
 The Vision |
Here is the vision for the Health Centre and Pharmacy.
|
 Health Centre and Pharmacy |
 Layout of Health Centre and Pharmacy |
Here is the vision for the new Nursery.
|
 Nursery courtyard |
 Nursery covered playarea |
 The interior of the Nursery |
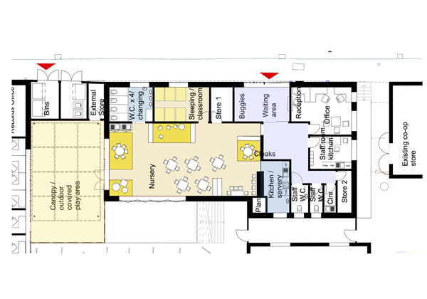
 Here is the layout of the Nursery |